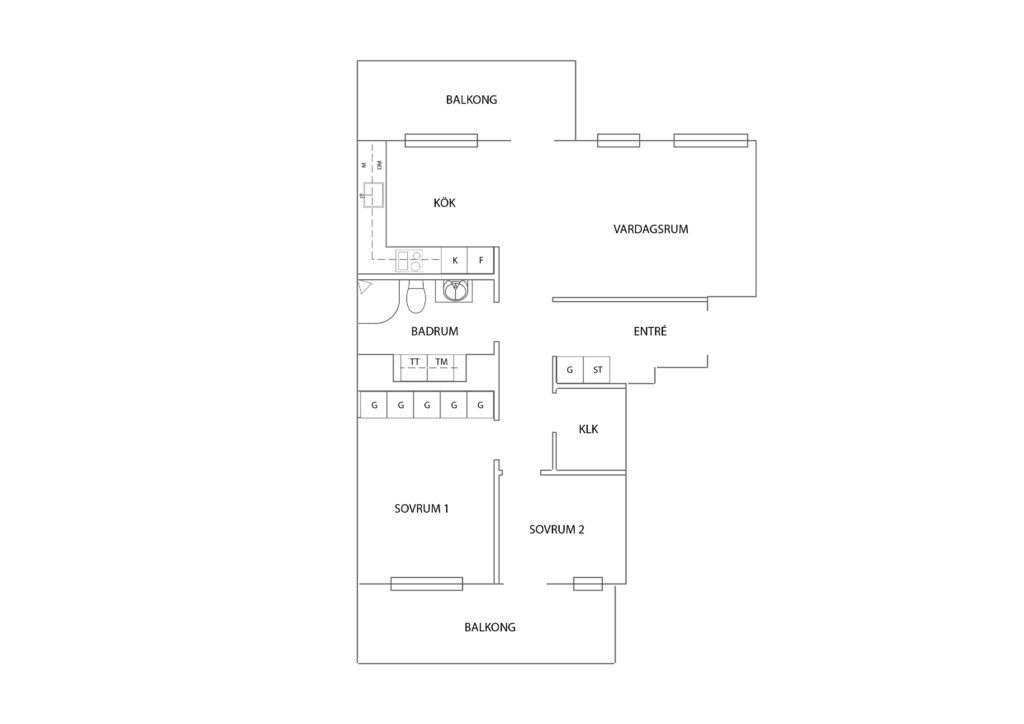
Entré/hall
Klinker på golv
Garderober
Parkett
Kök
Släta luckor i grå/beige
Grå bänkskiva i laminat
Vitt kakel ovanför bankskiva
Gott om förvaring i både över- och underskåp.
Vitvaror från Cylinda
Micro i Överskåp
Spis med glashäll och varmluftsugn
Diskmaskin
Kyl och frys
Köksfläkt
Parkett
Stort fönster utan insyn
Vardagsrum
Utgång till balkong med morgon/fm sol
Stora fönster utan insyn
Parkett
Sovrum 1
Stort sovrum med plats för både säng och större skrivbord
Ca 14 kvadratmeter
Garderobsvägg
Parkett
Sovrum 2
Sovrum med plats för säng samt mindre skrivbord och förvaring
Ca 7 kvadratmeter
Utgång till balkong med kvällssol
Parkett
Badrum
Mörkt klinker och vitt kakel
Handfat med kommod
Spegelskåp ovanför handfat
Duschhörna med glasväggar
Tvättmasking och torktumlare från cylinda
Bänkskiva med förvaring ovanför
Handdukstork
Klädkammare
Praktisk klädkammare med plats för flera garderober
Parkett
Brf Jakobs trädgård
Brf Jakobs trädgård är en äkta bostadsrättsförening. I föreningen finns 53 lägenheter, samtliga med bostadsrätt.
Individuella elmätare sitter i varje lägenhet.
Föreningen har IMD av el och varmvatten.
GEMENSAMMA UTRYMMEN
I föreningen finns barnvagnsparkering och cykelrum.
PARKERING
Det finns 9 st platser i garaget och 3 markparkeringar. Det finns även 2 ladd-plaster för elbil (endast på markplan), dessa är tidsbegränsade och förlängs med en månad i taget. Platserna har en ömsesidig uppsägning på en månad pga. att dessa är reserverade för en framtida bilpool.
Markplats 1050 kr/månad. Inga lediga platser i dagsläget.
Ladd-plats 1425 kr/månad (endast för el-bilar) Vänligen observera att elförbrukningen kommer debiteras.
Garage 1500 kr/månad.
TV OCH BREDBAND
Bredband finns via öppen fiber.
ÖVERLÅTELSEAVGIFT
1 470 kr betalas av köparen
PANTSÄTTNINGSAVGIFT
588 kr